分享
檢舉
地址
桃園市桃園區博愛路 地圖

基本資料

型態大樓
屋齡37.5年
管理方式--
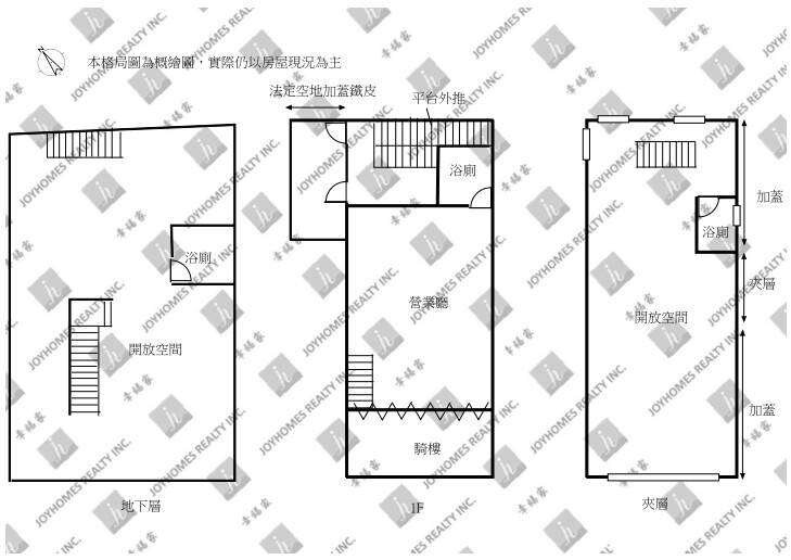
格局--房3廳3衛
座向坐西北朝東南
管理費$-- / 月
樓層-1-2 / 8 樓
公設比--
房貸參考$64,535 /月
社區 --

坪數說明

建物 96.77 坪
主建物86.62 坪
附屬建物5.17 坪
共同使用4.97 坪
其他 -- 坪
土地5.31 坪

💖小潔好屋💖桃園站前南門市場多空間金店面

2,380
  • 型態
    大樓
  • 格局
    --房3廳3衛
    • 建物
      96.77 坪
    • 單價
      -- 萬
    • 樓層
      -1-2 / 8 樓
    • 屋齡
      37.5 年

房屋照片

特色描寫
👉林小潔:0939-351-081 Line ID : a0939351081 🌻桃園市區站前優質地段,自用或投資皆宜 🌻B1、1樓、夾層,使用空間彈性靈活 🌻鄰近南門市場、大廟景福宮,國中國小環繞,人潮車潮多 🌻商圈成熟,商家聚集,店鋪價值高 🌻重點規劃綠線G08捷運站興建中 🎀💖開價不等於成交價,心動不如馬上行動!🏃‍♀️🏃‍♀️🏃‍♀️ ☎️歡迎立即來電預約賞 📞📞 🏡全區經營 歡迎屋主專任委託 🏡一人委託 百人服務 🏡中信房屋中壢新生加盟店 🏡新堯企業社 🏡不動產經紀人 : 徐定豐(103)桃縣字第000339號 ⦿物件資料若有誤植,依政府機關登載内容為準 ⦿格局圖僅供參考,實際狀況以現場為主 ⦿距離及移動時間乃依據地圖軟體僅供参考
展開看全部
}