分享
檢舉
地址
新竹縣竹北市勝利八街一段 地圖

基本資料

型態大樓
屋齡7.6年
管理方式物業管理
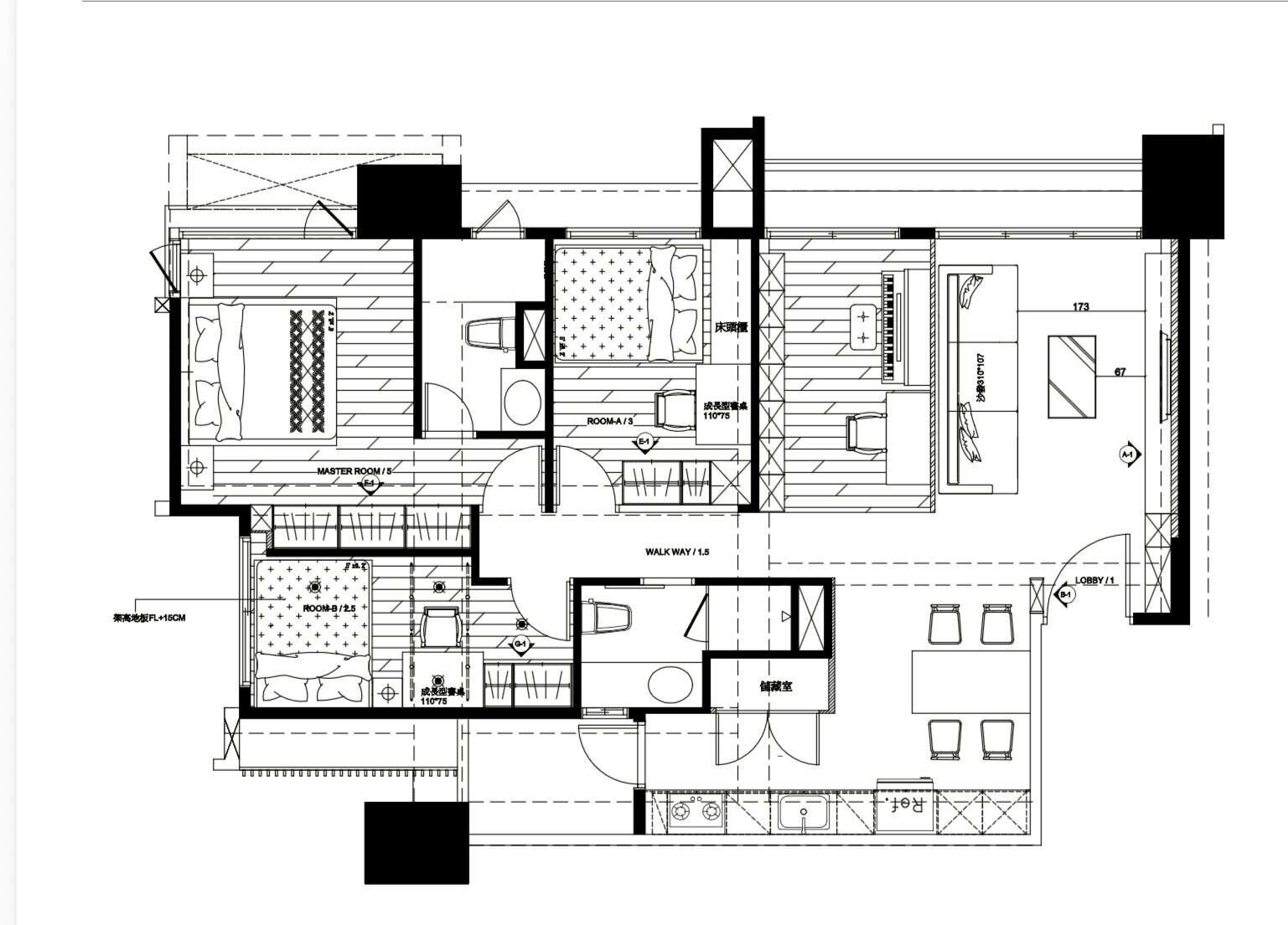
格局3房2廳2衛
座向坐東北朝西南
管理費$4,123 / 月
樓層13 / 29 樓
公設比29.1%
房貸參考$102,985 /月

坪數說明

建物 55.34 坪
主建物29.04 坪
附屬建物2.67 坪
共同使用16.08 坪
其他 -- 坪
土地4.96 坪

專)縣三 AI勝利國中【雙學苑】邊間朝南3+1房

3,798 萬 (含車位)
  • 型態
    大樓 (有電梯)
  • 格局
    3房2廳2衛
    • 建物
      55.34 坪
    • 單價
      68.6 萬
    • 樓層
      13 / 29 樓
    • 屋齡
      7.6 年
特色描寫
🏡 【縣三 AI 園區・稀有邊間 3+1 房|中高樓層採光佳+寬敞車位】 想找生活機能強、交通便利又有學區保值性的家? 這間位於縣三 AI 智慧園區旁的好宅,完美滿足你與家人的需求! 🌟 物件亮點 📍 核心地段生活圈 ・縣三 AI 園區旁 ・步行可到遠百、喜來登商圈 ・周邊生活、餐飲、購物超方便 🚗 交通便捷 ・近國道交流道、經國橋 ・進出園區、高速公路都很便利 🎓 雙明星學區 ・安興國小+勝利國中 孩子學習無憂,家長安心 🛋 格局與空間 ・3+1 房,可依需求直接加一房 ・廚房旁巧思規劃儲物間 ・純室內 29 坪,邊間朝南,中高樓層採光通風佳 🚘 車位與設備 ・靠邊寬敞車位,停車、上下車超方便 ・現裝充電樁(不含壁掛式充電器) ・雙衛浴開窗+平面車位 ・全室 Hitachi 變頻冷暖,舒適居家無死角 📌 備註 照片中可移動傢俱與家電已搬離,僅保留固定裝修部分,請以現場實際狀況為主。 ✨ 稀有邊間+大格局+中高樓層採光 生活機能、學區、交通一次滿足,歡迎預約賞屋! 📞 賞屋專線:0971-678-772 陳家卉(小雨) 📲 LINE ID:.apple. 💖 家卉用心・細心,讓您放心!喜歡的話,就讓家卉幫您談! 📢 世暘地產事業有限公司 經紀人證號:(103)苗縣地登字第00227號
展開看全部
}