分享
檢舉
地址
台中市烏日區學田路 地圖

基本資料

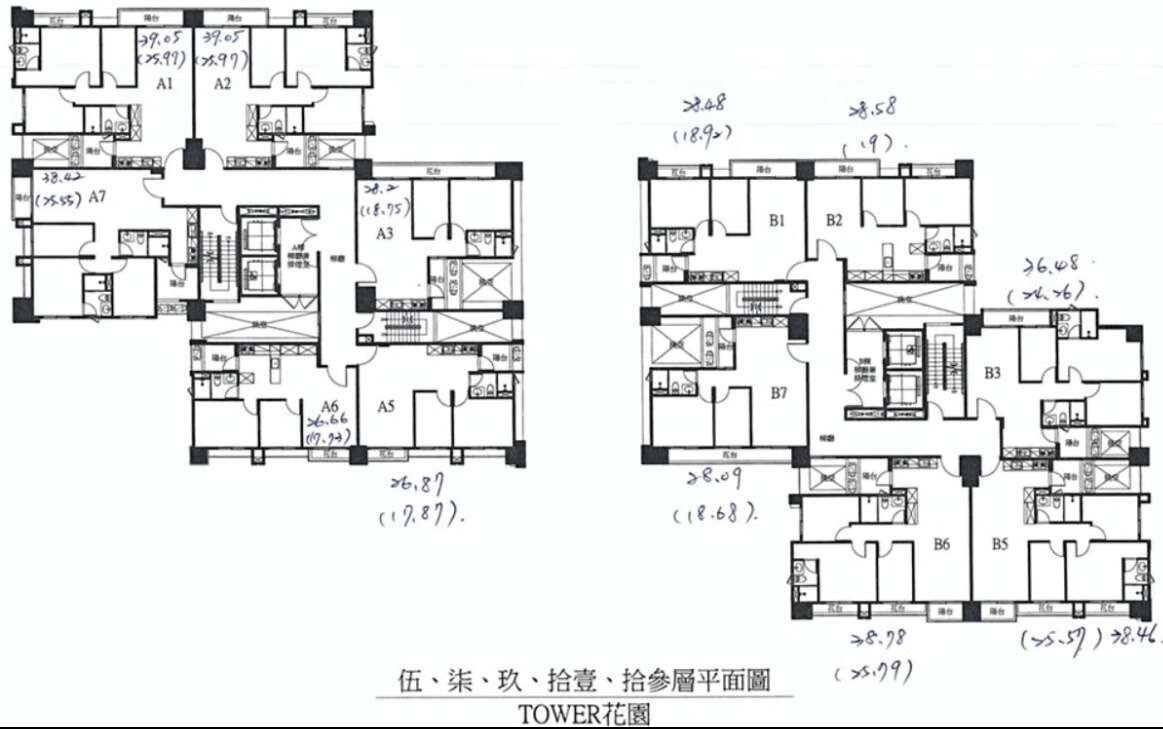
型態大樓
屋齡預售屋
管理方式物業管理
格局2房2廳1衛
座向--
管理費$-- / 月
樓層4 / 15 樓
公設比--
房貸參考$35,196 /月

坪數說明

建物 38.4 坪
主建物-- 坪
附屬建物-- 坪
共同使用-- 坪
其他 -- 坪
土地-- 坪

多戶可選⭐️巨鼎tower花園⭐️雙陽台兩房平車最

1,298 萬 (含車位)
  • 型態
    大樓 (有電梯)
  • 格局
    2房2廳1衛
    • 建物
      38.4 坪
    • 單價
      -- 萬
    • 樓層
      4 / 15 樓
    • 屋齡
      -- 年
特色描寫
社區多戶可選,成交多戶🍎 (1) 地點無敵: 高鐵娛樂城完工在即,台中高鐵站,國道一號,74快速道路都在旁邊 基地位於學田路,鬧中取靜,不用像重劃區一樣人擠人,車擠車 (2) 格局無敵: 稀有兩房配置雙陽台,回家就是舒服 戶數僅158戶,社區全平面車位 (3) 價錢無敵: 房子你負責喜歡,價錢我負責努力 =============================== 沒錢砸廣告,真心做服務 開價只是開價,有出價有機會 不看不相識專線-程皓 電話:0963-109580 Line:TL20145 手機可直接加Line 勝竑不動產經紀業有限公司 (101) 中市經紀字第00884號 不動產經紀人:鄭玉玲
展開看全部
}