分享
檢舉
地址
高雄市鳥松區興華街 地圖

基本資料

型態大樓
屋齡2年
管理方式管理員
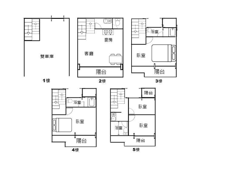
格局4房2廳4衛
座向坐南朝北
管理費$-- / 月
樓層1-5 / 5 樓
公設比--
房貸參考$74,568 /月

坪數說明

建物 62.3 坪
主建物54.76 坪
附屬建物7.54 坪
共同使用-- 坪
其他 -- 坪
土地26.38 坪

澄清湖特區🌟新成屋!圓山鳥松雙車墅車庫透天

2,750 萬 (含車位)
  • 型態
    大樓
  • 格局
    4房2廳4衛
    • 建物
      62.3 坪
    • 單價
      38.45 萬
    • 樓層
      1-5 / 5 樓
    • 屋齡
      2 年
特色描寫
🎀鄰近澄清湖生活環境清幽 🎀輕屋齡質感別墅室內採光佳 🎀社區型透天門口可停雙車 🎀屋內家具電齊全 鄰居素質佳 🎀鄰建工商圈 文山特區生活圈 🏠🏠賞屋請提前預約🏠🏠 聯絡方式✨ 💬 Line ID: zxc85517 「台慶不動產🏡裕誠自由店」 「兆陞不動產仲介有限公司」 「 (107)高市字第01324號 陳昌忻」 💛直接LINE : zxc85517 💛 或來電☎️詢問0926-772-555 🏅誠實房仲🙋🏻‍♀️歡迎委託售屋🙋🏻‍♀️ 我們有強大的團隊和積極處理的責任心! 學區:鎮北國小/文山高中,車程約2-10分內 *賞屋帶看請盡量提早一天預約💟
展開看全部
}