分享
檢舉
地址
新北市新店區斯馨路 地圖

基本資料

型態大樓
屋齡--年
管理方式物業管理
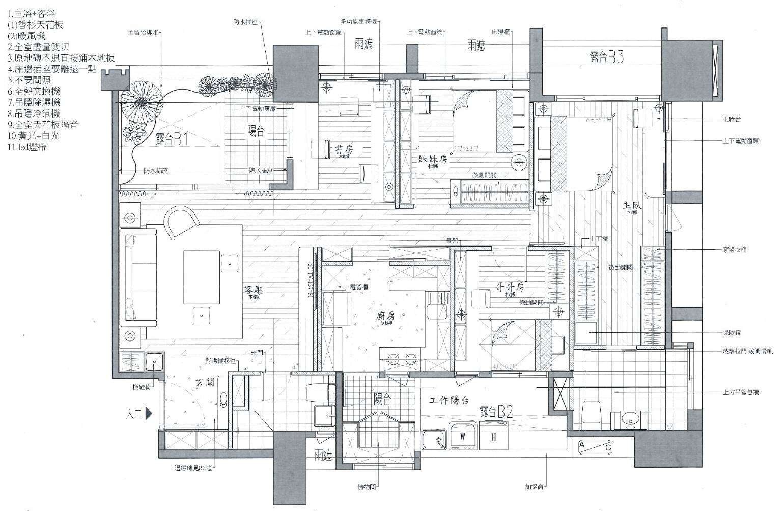
格局4房2廳2衛
座向--
管理費$-- / 月
樓層2 / 24 樓
公設比--
房貸參考$127,118 /月

坪數說明

建物 59.23 坪
主建物30.38 坪
附屬建物2.67 坪
共同使用16.95 坪
其他 -- 坪
土地-- 坪

🚀洽鳳翔小邱🚀稀有露臺戶🚀2B戶型室內30坪

4,688 萬 (含車位)
  • 型態
    大樓 (有電梯)
  • 格局
    4房2廳2衛
    • 建物
      59.23 坪
    • 單價
      -- 萬
    • 樓層
      2 / 24 樓
    • 屋齡
      -- 年
特色描寫
我們店就在社區旁! 「現在約 現在看專線」:0932-178959 看屋洽 聯上澐朗社區專責人 小邱 「現在約 現在看專線」:0932-178959 看屋洽 聯上澐朗社區專責人 小邱 「現在約 現在看專線」:0932-178959 看屋洽 聯上澐朗社區專責人 小邱 >實際來看看現場專線 洽-小邱0932-178959 小邱負責整個央北重劃區 如果您霧沙沙不知道要怎麼選擇央北的房子 打給小邱就對了! 社區腹地大小 > 建設公司比較 > 每個社區的坪數及特色 小邱一一講解給您聽 讓您很清楚的知道要怎麼買才最適合~
展開看全部
}