分享
檢舉
地址
新北市新店區順德街 地圖

基本資料

型態大樓
屋齡2年
管理方式物業管理
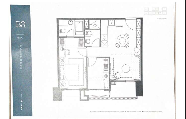
格局2房2廳2衛
座向坐北朝南
管理費$3,947 / 月
樓層4 / 13 樓
公設比--
房貸參考$78,310 /月

坪數說明

建物 38.7 坪
主建物16.8 坪
附屬建物1.47 坪
共同使用9.63 坪
其他 -- 坪
土地-- 坪

😍將捷旅闊稀有雙衛兩房車😍面泳池超舒服

2,888 萬 (含車位)
  • 型態
    大樓 (有電梯)
  • 格局
    2房2廳2衛
    • 建物
      38.7 坪
    • 單價
      96.7 萬
    • 樓層
      4 / 13 樓
    • 屋齡
      2 年
特色描寫
✿ 房屋特色 ✿ 物件優勢: 1.「一級建設品牌:將捷集團,深耕建築業47年;榮獲2022年國家卓越建設獎」 2.「集團總裁林長勳為建築師出身,並導入日本建築大師谷口吉生之美學概念,以美術館設計理念,由內而外顯露美學精神」 3.「自擁甲級忠明營造廠,採多項專利工法,強調施工細節,建築品質有保障」 4.「位於央北重劃區順德街,為少數靜巷住宅,座西北朝東南採光佳,朝向鄰案之千坪花園泳池,棟距最遠拉長近60米,並鄰近中央路生活圈,同時兼具生活機能和高居住品質 5.「28.39坪央北最大兩房規劃,一層5戶央北之最」 6.「大2房2衛,挑高3米5(無灑水頭);精選高質感木地板,主臥室預留置衣空間,以最佳尺度打造自住環境」 7.「純住宅社區,僅120戶,無店面,央北少數無地主戶的社區」 社區資訊: 社區腹地為907坪,總戶數120戶 一層五戶兩部電梯,規劃為A,B兩棟,地上13樓,地下B3樓 社區戶型分配為28坪及36坪(2-3房) 管理費一坪120元,車位管理費600元 公共設施:中庭花園,交誼廳,健身房,廚藝教室,閱覽室,瑜珈教室 ☎☎☎ 歡迎來電預約賞屋 ☎☎☎ ☎☎☎ 歡迎來電預約賞屋 ☎☎☎ ☎☎☎ 歡迎來電預約賞屋 ☎☎☎ ===================================================== ✿ 專業服務 ✿ ✔房屋買賣租賃服務 ✔免費市場行情諮詢 ✔最新專業房市資訊 ✔免費稅費估價服務 ✔房屋市場投資分析 ✔免費都市更新諮詢 ===================================================== ✿ 公司介紹 ✿ 『中信房屋-群信房產』深耕於大台北地區, 擁有數十位專業資深經紀人及友好團隊合作文化, 主管群資歷豐富,對於不動產買賣擁有多年實務經驗! 完整的教育訓練升遷制度,及E化配對多元行銷, 依品牌理念「專業.安全.熱誠」,來滿足客戶服務需求, 嚴謹的保障每位客戶的權益,提供精緻化優質房屋仲介服務, 讓房仲不只是房仲,中信房屋群信房產更是您值得信賴的好朋友。 ========================================================== 經紀人:陳仁祥(95)北市經證字第00674號
展開看全部
}