新建案/社區
區域找社區
地圖找社區
5年新社區
買屋
全部物件
新上架物件
新降價物件
土地
全部土地
新上架土地
新降價土地
租屋
區域找租
捷運找租
新上架租件
AI 查房價
實價登錄
全部實價
住宅實價
店面實價
土地實價
新聞
下載 APP
經紀人專區
刊登售屋
刊登租屋
開發物件
購買方案
首頁
買屋比價
台北市
北投區
公館路
奇岩別莊
房價分析
分享
檢舉
地址
台北市北投區公館路
地圖
基本資料
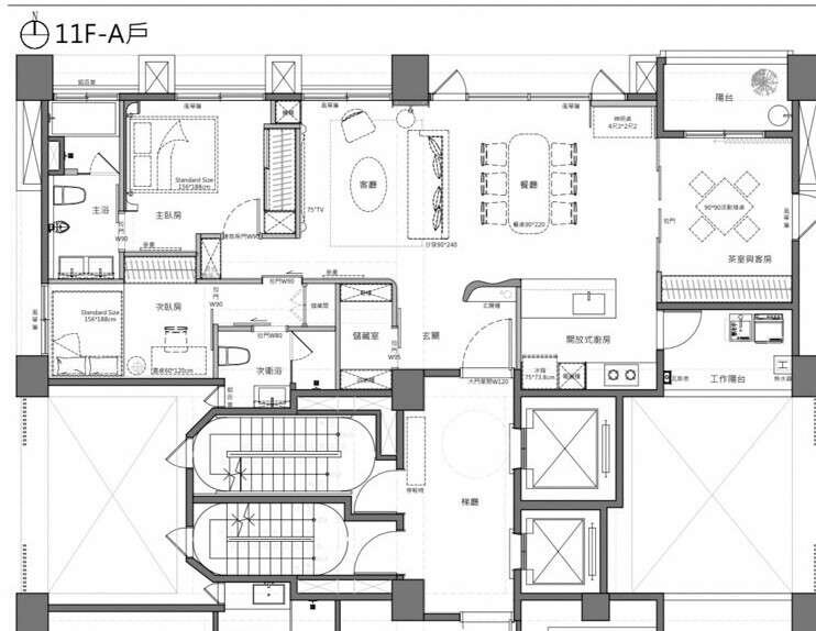
型態
大樓
屋齡
0.3年
管理方式
--
格局
3房2廳2衛
座向
--
管理費
$-- / 月
樓層
2 / 11 樓
公設比
--
房貸參考
$150,627 /月
使用本息平均攤還法,利率1.935%,貸款成數7成,貸款期限30年,以上資料僅供參考,實際利率與貸款資料請洽各銀行。
社區
奇岩別莊
坪數說明
建物
51.05 坪
主建物
31.28 坪
附屬建物
3.36 坪
共同使用
16.41 坪
其他
-- 坪
土地
-- 坪
❤️奇岩別莊~新廈二樓3房❤️0971002032
5,555
萬 (含車位)
>台北市北投區公館路
奇岩別莊
型態
大樓
(有電梯)
格局
3房2廳2衛
建物
51.05 坪
單價
108.8 萬
樓層
2 / 11 樓
屋齡
0.3 年
房屋照片
特色描寫
❤️年底交屋,頂級建材,買到賺到 1、 地點佳,位在北投知名別墅社區內,住戶素質高 2、 丹鳳、崇仰雙公園交會,家在公園內,在家像度假 3、近家樂福超市、北投市場,生活機能好 4、頂級建材及防水,綠建築,全室熱交換 5、 一層兩戶雙電梯+車位,年底完工交屋 ❤️歡迎預約鑑賞,東森北投奇岩店--店長葉書,0971002032 皇冠不動產有限公司經紀人羅聯芳,北市經證字 01771號
展開看全部
}