分享
檢舉
地址
台北市內湖區內湖路三段 地圖

基本資料

型態大樓
屋齡12年
管理方式管理員
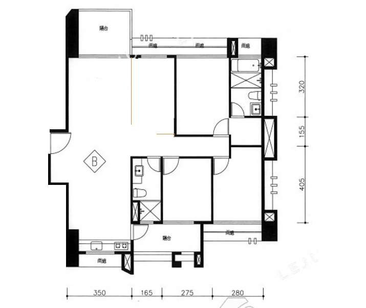
格局4房2廳2衛
座向坐西南朝東北
管理費$8,554 / 月
樓層4 / 14 樓
公設比31%
房貸參考$143,388 /月

坪數說明

建物 79.89 坪
主建物32.37 坪
附屬建物7.45 坪
共同使用18.13 坪
其他 -- 坪
土地12.3 坪

【台灣廖士緯】湖山妍超值好屋,面綠景+贈裝潢,專約

5,288 萬 (含車位)
  • 型態
    大樓 (有電梯)
  • 格局
    4房2廳2衛
    • 建物
      79.89 坪
    • 單價
      82 萬
    • 樓層
      4 / 14 樓
    • 屋齡
      12 年
特色描寫
※【坪數】57.95坪+坡道平面雙車位 ※【房屋概述】 1.內湖區金龍路215號,全聯超市後方步行約2分鐘,沿途行經公園 2.距離內湖捷運站約4分鐘車程,步行約12~13分鐘(以上資料為是用GEOGLEMAP測量) 3.內湖12.3年屋齡新屋,每坪只要82.6萬再贈每坪10~15萬裝潢,實際住得成本很便宜 4.正面保護區綠景,進門窗外一片綠油油,開窗立即享受大自然的空氣與安靜,在家可以很放鬆 5.前後陽台,前陽台方正又大很好用,而且面綠景,設置一個戶外看書區喝下午茶也超棒 6.公設約31%,主+附屬建物約39.82坪,現況3房+1開放式書房,格局三面採光,很方正 7.附坡道平面雙車位,車位大又好停,不用練技術,也在電梯附近 8.周邊15年內屋齡社區行情84~95萬,本案12年82萬還贈裝潢 (PS旁邊31年大樓森之林均價約74萬多,這間扣裝潢還比31年大樓便宜),房價有支撐力與增值性 9.5288萬買內湖12年大樓4房雙車位,面綠景+贈裝潢,相當超值,獨家專約開賣中 10.有需要房屋影片,歡迎LINE或來電吩咐索取,謝謝您(LINEID:kevin.217)台灣小廖 ※ 這間房子的亮點還有非常多,誠摯邀請您蒞臨現場,一探實際質感與生活氛圍! ※ 想快速找到近期精選好案?可搜尋關鍵字【台灣廖士緯】查看近期篩選的強案,約看更方便。 ※ 我的服務風格簡單直接 — 不油條、不話術、不硬推銷。從事房地產 19 年、成交經驗豐富並獲獎無數,會確實替您把關每個買賣細節,也有能力為您爭取到對您更有利的條件,平常沒有新案時也不會刻意打擾,若我的風格符合您的期待,歡迎隨時與我聯繫。 ※ 近期 591 房聊系統詐騙頻繁,我暫不透過系統回覆訊息,歡迎直接來電或加line聯繫,謝謝喔!
展開看全部
}