分享
檢舉
地址
新北市三重區大同南路 地圖

基本資料

型態大樓
屋齡35.9年
管理方式
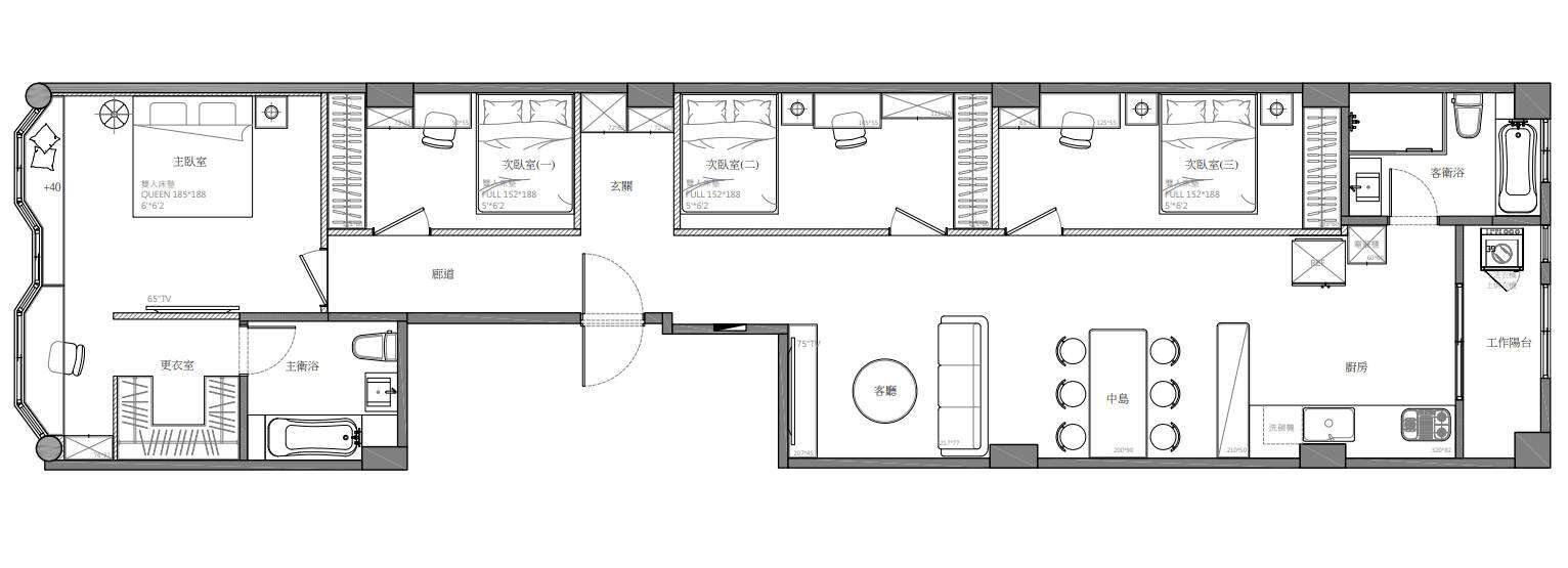
格局開放格局
座向坐東北朝西南
管理費$900 / 月
樓層3 / 7 樓
公設比--
房貸參考$51,249 /月
社區 --

坪數說明

建物 38.11 坪
主建物35.53 坪
附屬建物2.58 坪
共同使用-- 坪
其他 -- 坪
土地6.26 坪

🐻熊推薦💯菜寮捷運站低公設電梯3樓

1,890
  • 型態
    大樓 (有電梯)
  • 格局
    開放格局
    • 建物
      38.11 坪
    • 單價
      52 萬
    • 樓層
      3 / 7 樓
    • 屋齡
      35.9 年

房屋照片

特色描寫
🔥【震撼破盤】三重菜寮站約600公尺,低公設電梯宅! 💰 1980萬 買 38坪大空間! ❌ 拒絕虛坪! 還在看公設比 35% 的房子嗎? 買 38 坪只能住 25 坪,剩下的錢都在買樓梯跟大廳... 這間 #大同南路電梯華廈 讓您徹底翻轉認知! ✨ 本案 5 大必買理由: 1️⃣ 【極致坪效】 權狀 38.11 坪 = 主建+附屬38.11 坪!買到就是賺到! 2️⃣ 【基礎完工】 水電管線、浴廁、天花板、地板已全部更新! 現省 150 萬以上裝潢費,省下半年施工期,直接搬家就能住! 3️⃣ 【空間自由】 目前為「全開放式」無隔間! 不論要規劃大三房,還是當作 SOHO 創意工作室,隨您定義! 4️⃣ 【商業用途】 合法商業登記!一橋之隔進台北,創業、辦公、居住三合一的最佳基地。 5️⃣ 【破盤單價】 開價 1980 萬,換算單價僅 51.9 萬! 同樣的室內空間,新成屋要花 4000 萬才買得到! 📍 真正的「蛋黃區」生活: 住在 大同南路,就是住在美食堆裡! 🥣 早餐場:樓下就是 大同南路市場,新鮮蔬果、傳統油飯(南路傳統美食)隨手買。 🥢 午晚餐:走路就能到三重五大滷肉飯之一的 今大魯肉飯 (大仁街),或是 瑞榮食堂 的燒臘。 🥤 下午茶:散步去買 三重牛乳大王 的雞排配木瓜牛奶。 🚇 交通:近 捷運菜寮站,過個忠孝橋就到台北車站,通勤族首選。 🏠 物件硬實力: 大空間:開放式格局,辦公自住隨你規劃 (附建測圖)。 免整理:最花錢的 水電管線、衛浴設備 屋主都換新了! 低負擔:管理費只要 900元/雙月,持有成本超低。 👍👍👍👍👍👍👍👍👍👍 有巢氏房屋大安復興加盟店 鄭金雄:0955848670 歡迎詢問 Line ID : alexjengvn WeChat ID : alexjeng 營業員(112)登字第434828號 租賃住宅管理人員証書字號: (111)登字第013040號 👉豐巢不動產經紀有限公司 統一編號:54359150 李德炘(102)北市經證字第01995號👈
展開看全部
}