新建案/社區
區域找社區
地圖找社區
5年新社區
買屋
全部物件
新上架物件
新降價物件
土地
全部土地
新上架土地
新降價土地
租屋
區域找租
捷運找租
新上架租件
AI 查房價
實價登錄
全部實價
住宅實價
店面實價
土地實價
新聞
下載 APP
經紀人專區
刊登售屋
刊登租屋
開發物件
購買方案
首頁
買屋比價
高雄市
鼓山區
龍德路
遠見新宿
房價分析
分享
檢舉
地址
高雄市鼓山區龍德路
地圖
基本資料
型態
大樓
屋齡
預售屋
管理方式
保全公司
格局
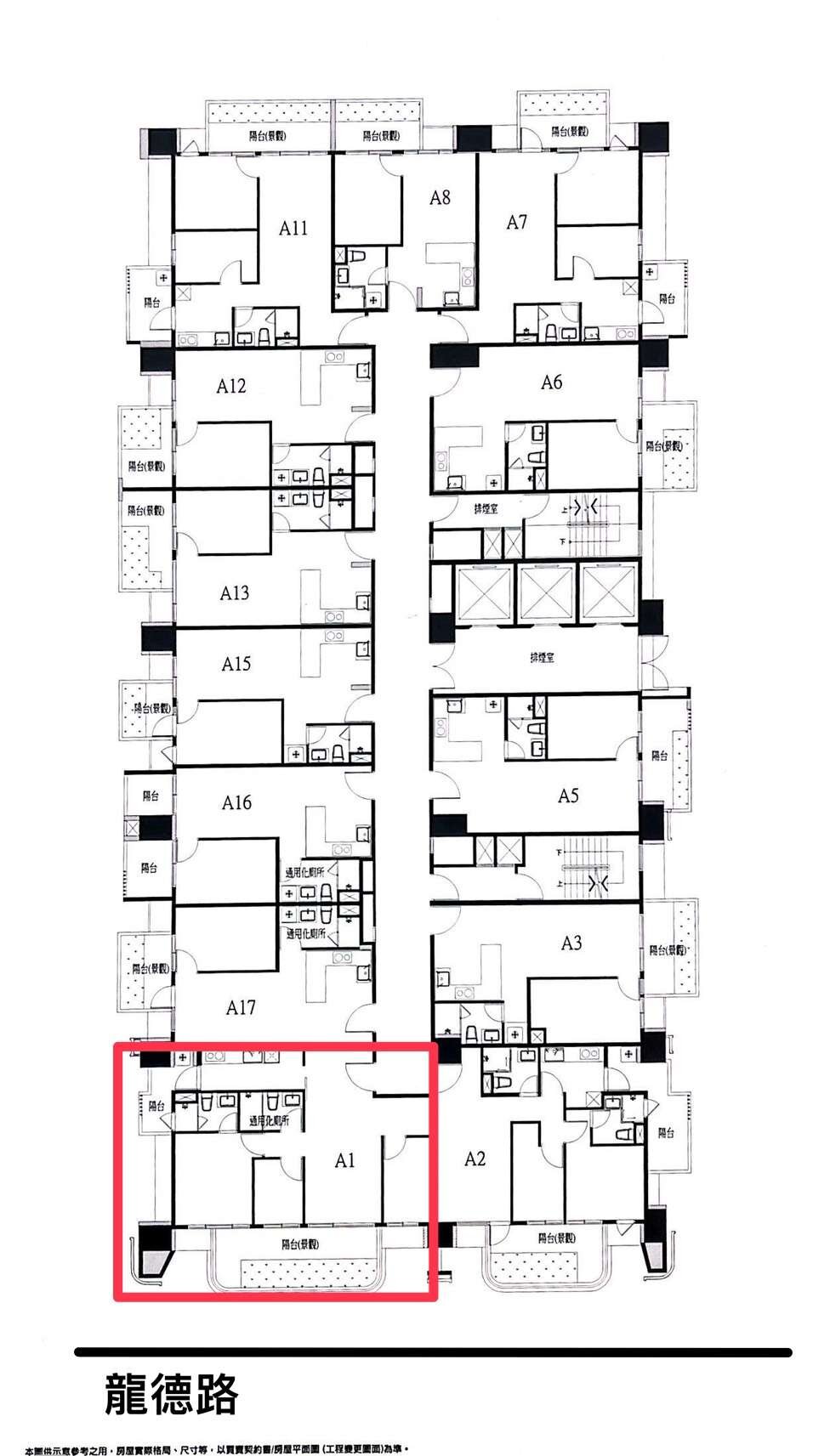
3房2廳2衛
座向
--
管理費
$-- / 月
樓層
10 / 19 樓
公設比
--
房貸參考
$62,312 /月
使用本息平均攤還法,利率1.935%,貸款成數7成,貸款期限30年,以上資料僅供參考,實際利率與貸款資料請洽各銀行。
社區
遠見新宿
坪數說明
建物
41.41 坪
主建物
20.39 坪
附屬建物
7.2 坪
共同使用
13.82 坪
其他
-- 坪
土地
2.76 坪
A★遠雄PARK16⭐農16接近平轉最棒A1格局
2,298
萬
>高雄市鼓山區龍德路
遠見新宿
型態
大樓
(有電梯)
格局
3房2廳2衛
建物
41.41 坪
單價
55.5 萬
樓層
10 / 19 樓
屋齡
-- 年
房屋照片
特色描寫
★遠雄提供一條龍服務不擔心售後服務: 提供5525保固,包括防水保固5年、地壁磚保固5年與結構保固25年 ★C23輕軌龍華國小站 捷運凹仔底站 ★富邦BOT開發案、高雄巨蛋、義享天地、漢神百貨、COSTCO與裕誠商圈、瑞豐商圈 ★公設齊全:接待大廳、空中花園、交誼廳、游泳池、健身房、多功能空間
展開看全部
}