新建案/社區
區域找社區
地圖找社區
5年新社區
買屋
全部物件
新上架物件
新降價物件
土地
全部土地
新上架土地
新降價土地
租屋
區域找租
捷運找租
新上架租件
AI 查房價
實價登錄
全部實價
住宅實價
店面實價
土地實價
新聞
下載 APP
經紀人專區
刊登售屋
刊登租屋
開發物件
購買方案
首頁
買屋比價
桃園市
中壢區
延平路
龍田市中星
房價分析
分享
檢舉
地址
桃園市中壢區延平路
地圖
基本資料
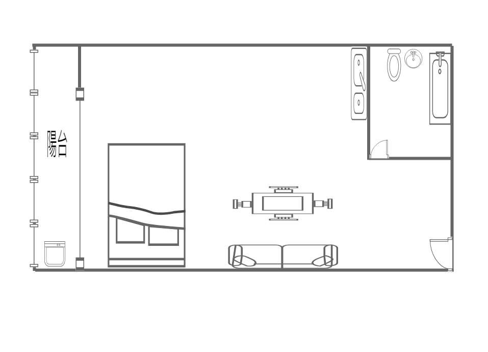
型態
大樓
屋齡
25年
管理方式
管理員
格局
1房1廳1衛
座向
坐西朝東
管理費
$990 / 月
樓層
6 / 14 樓
公設比
--
房貸參考
$17,300 /月
使用本息平均攤還法,利率1.935%,貸款成數7成,貸款期限30年,以上資料僅供參考,實際利率與貸款資料請洽各銀行。
社區
龍田市中星
坪數說明
建物
19.36 坪
主建物
10.5 坪
附屬建物
-- 坪
共同使用
3.23 坪
其他
-- 坪
土地
1.28 坪
專任龍田市中星陽台大套房
638
萬 (含車位)
>桃園市中壢區延平路
龍田市中星
型態
大樓
(有電梯)
格局
1房1廳1衛
建物
19.36 坪
單價
33 萬
樓層
6 / 14 樓
屋齡
25 年
房屋照片
特色描寫
1.正市中心SOGO商圈 超增值地段警衛24小時全天候管理 2.面公園永遠景觀戶 格局方正採光優 屋況非常好 有大陽台~曬衣服不煩惱 3.社區垃圾分類 不必等垃圾車 4.樓下就有銀行和公車站牌 交通便利 生活機能優
展開看全部
}