分享
檢舉
地址
台中市北屯區敦富路 地圖

基本資料

型態大樓
屋齡0.3年
管理方式--
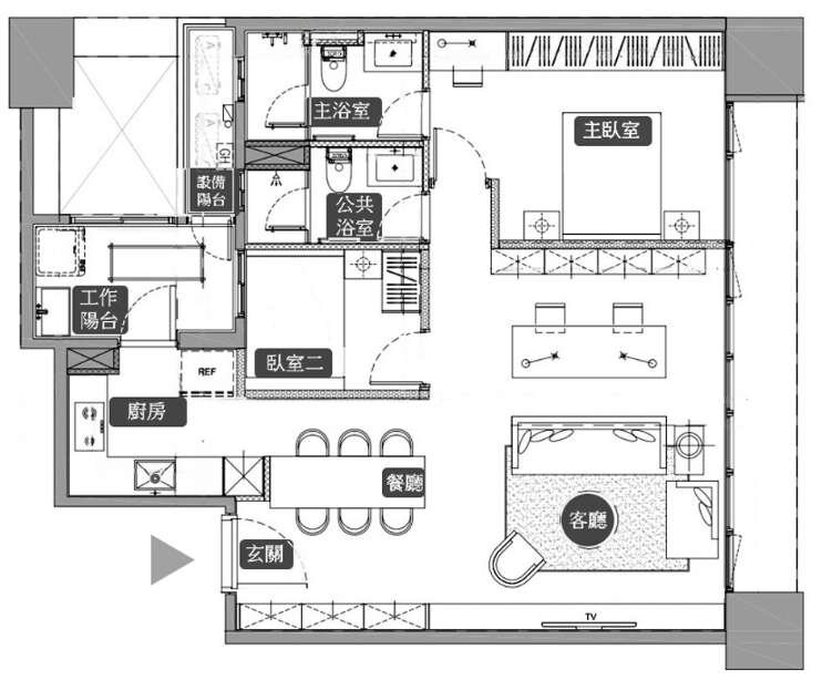
格局3房2廳2衛
座向--
管理費$-- / 月
樓層8 / 15 樓
公設比--
房貸參考$70,446 /月

坪數說明

建物 48.29 坪
主建物24.56 坪
附屬建物1.88 坪
共同使用-- 坪
其他 -- 坪
土地-- 坪

小翁💎隱私,才是最奢侈的享受。寶輝為層峰人士而生

2,598 萬 (含車位)
  • 型態
    大樓 (有電梯)
  • 格局
    3房2廳2衛
    • 建物
      48.29 坪
    • 單價
      -- 萬
    • 樓層
      8 / 15 樓
    • 屋齡
      0.3 年
特色描寫
您在北屯尋覓的,不只是房子,更是無可取代的生活高度。 👑 寶輝建設,淬鍊一級品質,獻映北屯機捷特區指標鉅作。我們深知,真正的尊榮,在於恰到好處的距離感——以「隱私即尊榮」為核心理念,打造層層守護的質感名宅。 ✨ 品味生活提案: 【絕佳採光】 面東大面積落地窗,迎接晨光灑落,生活隨時充滿能量。 【地段王者】 好市多核心生活圈,機捷特區三面臨路,無往不利。 【公設饗宴】 豐富完善的公設規劃,從容享受,將日常化為度假。 入主寶輝,將世界繁華盡收眼底,同時保有您的靜謐。即刻預約,親身體驗。
展開看全部
}