新建案/社區
區域找社區
地圖找社區
5年新社區
買屋
全部物件
新上架物件
新降價物件
土地
全部土地
新上架土地
新降價土地
租屋
區域找租
捷運找租
新上架租件
AI 查房價
實價登錄
全部實價
住宅實價
店面實價
土地實價
新聞
下載 APP
經紀人專區
刊登售屋
刊登租屋
開發物件
購買方案
首頁
買屋比價
台中市
北屯區
松竹五路二段
永隆陞景上居
房價分析
分享
檢舉
地址
台中市北屯區松竹五路二段
地圖
基本資料
型態
其他
屋齡
2.8年
管理方式
--
格局
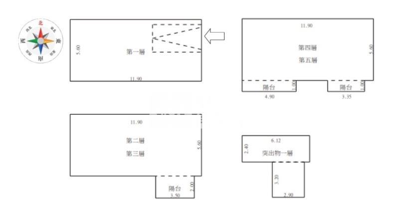
5房4廳7衛
座向
坐西朝東
管理費
$-- / 月
樓層
1-5 / 5 樓
公設比
--
房貸參考
$189,267 /月
使用本息平均攤還法,利率1.935%,貸款成數7成,貸款期限30年,以上資料僅供參考,實際利率與貸款資料請洽各銀行。
社區
永隆陞景上居
坪數說明
建物
117.27 坪
主建物
108.04 坪
附屬建物
9.23 坪
共同使用
-- 坪
其他
-- 坪
土地
55.44 坪
葳格旁全新未住角間電梯店面
6,980
萬
>台中市北屯區松竹五路二段
永隆陞景上居
型態
其他
格局
5房4廳7衛
建物
117.27 坪
單價
59.52 萬
樓層
1-5 / 5 樓
屋齡
2.8 年
房屋照片
特色描寫
1.角間大面寬可停多車 2.精選建材80*160地板、TOTO衛浴、永大電梯 3.土地住三分區全肉地無道路持分 4.大降2000萬,同區域同價錢這間規格最高 5.間間主臥~間間套房
展開看全部
}