新建案/社區
區域找社區
地圖找社區
5年新社區
買屋
全部物件
新上架物件
新降價物件
土地
全部土地
新上架土地
新降價土地
租屋
區域找租
捷運找租
新上架租件
AI 查房價
實價登錄
全部實價
住宅實價
店面實價
土地實價
新聞
下載 APP
經紀人專區
刊登售屋
刊登租屋
開發物件
購買方案
首頁
買屋比價
台中市
北屯區
敦富路
寶輝THE SPRINGS
房價分析
分享
檢舉
地址
台中市北屯區敦富路
地圖
基本資料
型態
大樓
屋齡
1年
管理方式
物業管理
格局
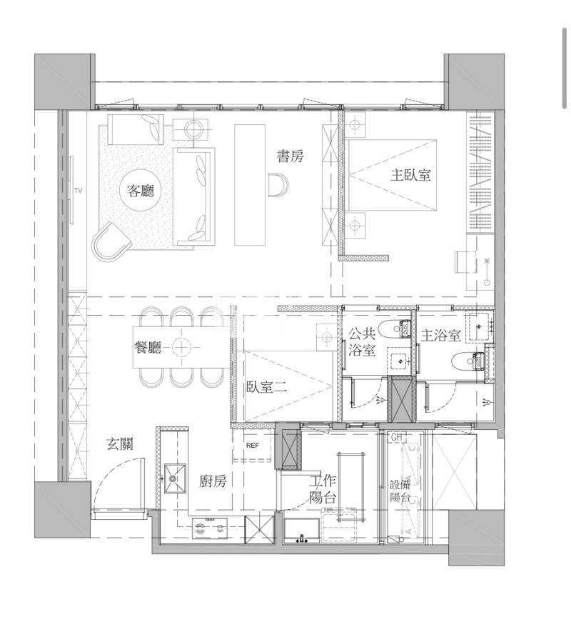
3房2廳2衛
座向
坐南朝北
管理費
$-- / 月
樓層
3 / 15 樓
公設比
35%
房貸參考
$67,735 /月
使用本息平均攤還法,利率1.935%,貸款成數7成,貸款期限30年,以上資料僅供參考,實際利率與貸款資料請洽各銀行。
社區
寶輝THE SPRINGS
坪數說明
建物
46.24 坪
主建物
23.36 坪
附屬建物
1.73 坪
共同使用
21.14 坪
其他
-- 坪
土地
6.81 坪
機捷唯一寶輝TheSprings🌈三改二附平車
2,498
萬 (含車位)
>台中市北屯區敦富路
寶輝THE SPRINGS
型態
大樓
(有電梯)
格局
3房2廳2衛
建物
46.24 坪
單價
54.02 萬
樓層
3 / 15 樓
屋齡
1 年
房屋照片
特色描寫
三房格局,現況兩房 附平面車位 社區質感佳,公設豐富 CP值高 歡迎預約賞屋 中信房屋 北屯敦富店 陳冠吟☎️0936760423 Line ID🔆@a0936760423 🉑歡迎委託、估價 🉑稅務試算 🉑不動產諮詢討論 🏆中信房屋名人堂 🏆中信房屋星光十強 🏆中信房屋百萬經紀人 🏆中信房屋卓越菁英獎 🏆中信房屋新秀獎 -- 經紀業:千家不動產有限公司 張鈞凱(112) 中市經紀字號第02080號
展開看全部
}