新建案/社區
區域找社區
地圖找社區
5年新社區
買屋
全部物件
新上架物件
新降價物件
土地
全部土地
新上架土地
新降價土地
租屋
區域找租
捷運找租
新上架租件
AI 查房價
實價登錄
全部實價
住宅實價
店面實價
土地實價
新聞
下載 APP
經紀人專區
刊登售屋
刊登租屋
開發物件
購買方案
首頁
買屋比價
台南市
安南區
城西街二段
楓華12期
房價分析
分享
檢舉
地址
台南市安南區城西街二段
地圖
基本資料
型態
別墅
屋齡
3年
管理方式
--
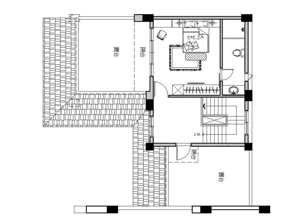
格局
4房2廳5衛
座向
--
管理費
$-- / 月
樓層
1-3 / 3 樓
公設比
--
房貸參考
$79,991 /月
使用本息平均攤還法,利率1.935%,貸款成數7成,貸款期限30年,以上資料僅供參考,實際利率與貸款資料請洽各銀行。
社區
楓華12期
坪數說明
建物
69.67 坪
主建物
-- 坪
附屬建物
-- 坪
共同使用
-- 坪
其他
-- 坪
土地
62.63 坪
專任【12米大面寬|可停雙車|百萬裝潢別墅】
2,950
萬
>台南市安南區城西街二段
楓華12期
型態
別墅
格局
4房2廳5衛
建物
69.67 坪
單價
-- 萬
樓層
1-3 / 3 樓
屋齡
3 年
房屋照片
特色描寫
🚀行家楓華12 在台南產業園區旁 12米大地坪大面寬 雙車百萬裝潢 唯一釋出 🍀百萬裝潢,高檔建材 🍀大地坪空間運用靈活 🍀四大套房,間間衛浴開窗 🍀12米大面寬,停雙車還可停機車 🍀3分鐘到土城國小,5分鐘到台南產業園區 社區:行家楓華12 地址:台南市安南區城西街二段 地坪:62.63坪 總建:69.67坪 屋齡:3年 格局:4/2/5 樓層:1~3F 售價:2950萬
展開看全部
}