分享
檢舉
地址
新北市新店區禾豐七路 地圖

基本資料

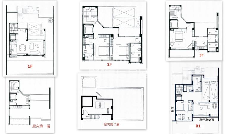
型態別墅
屋齡7.5年
管理方式物業管理
格局開放格局
座向坐東南朝西北
管理費$16,930 / 月
樓層1-3 / 3 樓
公設比3.7%
房貸參考$159,440 /月

坪數說明

建物 141.62 坪
主建物130.04 坪
附屬建物6.32 坪
共同使用5.25 坪
其他 -- 坪
土地113.4 坪

大台北華城逸品琚A區景觀戶-近康橋青山鎮

5,880 萬 (含車位)
  • 型態
    別墅 (有電梯)
  • 格局
    開放格局
    • 建物
      141.62 坪
    • 單價
      41.52 萬
    • 樓層
      1-3 / 3 樓
    • 屋齡
      7.5 年
特色描寫
物件特色: 結構強.住的放心.雙重擋土牆加基樁設計.不只強化建物承受力.更深入岩盤數米.連結地質層根深柢固.地錨擋土牆基地穩固.筏式基礎工程. 社區優勢-整體開發.先建後售.看得清楚買的放心.華城大區新建案中基地最大32000坪.獨棟會館663坪華城最大.公設最多9項.崗哨隱私(雙層).戶戶車庫都很大.目前成交均價約45萬CP值最高.社區道路完善整齊.戶戶獨棟素質佳.歡迎您來參觀-我來跟您介紹參觀- 逸品居 A6 建物優點 隱私佳:專屬車道,不與他區共用,正對社區公園樹林,無鄰棟壓迫。 交通便利:步行 2 分鐘到會館,3 分鐘到保全崗哨與接駁車站;接駁車 17 分鐘直達新店捷運站。 停車優勢:B1 車庫可彈性規劃 2–4 車位,另有專屬臨停空間,訪客停車方便。 戶外空間:設有私密後院與獨立花園,前後無擋土牆,採光通風佳。 景觀視野: 1F 面對花園與山景,不受西曬、不對鄰居大門車庫。 3F 主臥落地窗享全景山景。 4F 屋頂可俯瞰高山景致。 禾豐不動產仲介有限公司  經紀人北縣字第000309號 陳金發
展開看全部
}