新建案/社區
區域找社區
地圖找社區
5年新社區
買屋
全部物件
新上架物件
新降價物件
土地
全部土地
新上架土地
新降價土地
租屋
區域找租
捷運找租
新上架租件
AI 查房價
實價登錄
全部實價
住宅實價
店面實價
土地實價
新聞
下載 APP
經紀人專區
刊登售屋
刊登租屋
開發物件
購買方案
首頁
買屋比價
高雄市
左營區
博愛四路
博愛綻/博愛匯
房價分析
分享
檢舉
地址
高雄市左營區博愛四路
地圖
基本資料
型態
大樓
屋齡
11.1年
管理方式
管理員
格局
--房--廳--衛
座向
--
管理費
$-- / 月
樓層
1 / 24 樓
公設比
38%
房貸參考
$159,657 /月
使用本息平均攤還法,利率1.935%,貸款成數7成,貸款期限30年,以上資料僅供參考,實際利率與貸款資料請洽各銀行。
社區
博愛綻/博愛匯
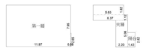
坪數說明
建物
61.94 坪
主建物
37.49 坪
附屬建物
1.22 坪
共同使用
23.23 坪
其他
-- 坪
土地
-- 坪
博愛綻 6米面寬 金店面 附雙平車
5,888
萬 (含車位)
>高雄市左營區博愛四路
博愛綻/博愛匯
型態
大樓
格局
--房--廳--衛
建物
61.94 坪
單價
95.06 萬
樓層
1 / 24 樓
屋齡
11.1 年
房屋照片
特色描寫
城揚建設 國家建築金獎 是建築界的領航者 正博愛四路 位居金融最核心 三鐵共構 近中山高與國10 南來北往超便利 鄰近 漢神巨蛋,新光三越,自由黃昏市場 臨40米道路 店面的華麗轉身 絕對非您莫屬 附~B1坡道雙平面車位~任君挑選 室坪28.85坪 夾層8.64坪 面寛6米,挑高4.5米 管理費一坪35元/車位200元/分區-住五
展開看全部
}