分享
檢舉
地址
桃園市中壢區青商路 地圖

基本資料

型態大樓
屋齡預售屋
管理方式其他
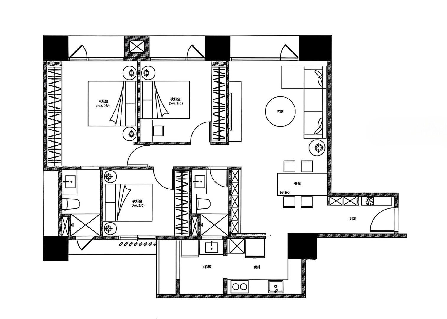
格局3房2廳2衛
座向--
管理費$-- / 月
樓層4 / 21 樓
公設比--
房貸參考$86,445 /月

坪數說明

建物 55.11 坪
主建物29.79 坪
附屬建物1.32 坪
共同使用17.22 坪
其他 -- 坪
土地-- 坪

青埔Iris🐟A18禾林RICHONE3大3房車

3,188 萬 (含車位)
  • 型態
    大樓 (有電梯)
  • 格局
    3房2廳2衛
    • 建物
      55.11 坪
    • 單價
      -- 萬
    • 樓層
      4 / 21 樓
    • 屋齡
      -- 年

房屋照片

特色描寫
🌈 稀有行情釋出 社區釋出目前最低單價 🌈 交屋全室裝潢 與建商承購價331萬(已包含售價內) 🌈 高鐵站前商業區、A18高鐵站800m,開車約3分鐘 🌈 IKEA旗艦/店華泰名品城/新光影城/橫濱八景島水族館 🌈 青埔國小開車約4分鐘 ,明星學區 🌈 站前廣場區域內黃金地段,後勢看漲 💖青埔買屋、賣屋,請指名林家榆Iris💕 📞歡迎來電預約鑑賞:林家榆Iris🐟0977-150-632(同LINE ID) 🐻熊理想領航團隊 🏆有巢氏房屋-青埔國小新生店|熊圓滿不動產有限公司 📄經紀人-孫翠蓮(112)桃經字第001380號
展開看全部
}