新建案/社區
區域找社區
地圖找社區
5年新社區
買屋
全部物件
新上架物件
新降價物件
土地
全部土地
新上架土地
新降價土地
租屋
區域找租
捷運找租
新上架租件
AI 查房價
實價登錄
全部實價
住宅實價
店面實價
土地實價
新聞
下載 APP
經紀人專區
刊登售屋
刊登租屋
開發物件
購買方案
首頁
買屋比價
新竹縣
竹北市
縣政九路
龍門第
房價分析
分享
檢舉
地址
新竹縣竹北市縣政九路
地圖
基本資料
型態
華廈
屋齡
31年
管理方式
無
格局
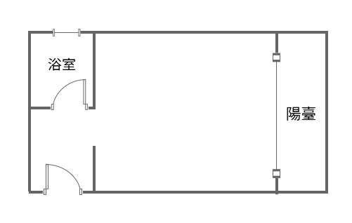
1房1廳1衛
座向
坐東南朝西北
管理費
$366 / 月
樓層
9 / 9 樓
公設比
32.4%
房貸參考
$17,029 /月
使用本息平均攤還法,利率1.935%,貸款成數7成,貸款期限30年,以上資料僅供參考,實際利率與貸款資料請洽各銀行。
社區
龍門第
坪數說明
建物
13.05 坪
主建物
7.34 坪
附屬建物
1.48 坪
共同使用
4.23 坪
其他
-- 坪
土地
-- 坪
縣政特區採光套房/有大陽台
628
萬
>新竹縣竹北市縣政九路
龍門第
型態
華廈
(有電梯)
格局
1房1廳1衛
建物
13.05 坪
單價
-- 萬
樓層
9 / 9 樓
屋齡
31 年
房屋照片
特色描寫
🌟頂樓安靜,採光超好 🌟衛浴開窗,通風良好 🌟㊣縣政特區,銀行商店小吃林立 🌟緊鄰光明美食商圈 🌟博愛國小、博愛國中 🌟收租置產自用首選 ————————————————— ✅約1分鐘到縣政府 ✅約2分鐘到博愛國小/博愛國中 ✅約3分鐘上國道一號 ----------------------------------- 🌈🌈稀有釋出,快預約賞屋🌈🌈 ✅請預約賞屋✅ 陞豐開發有限公司 經紀人: 陳胤求(109)苗縣地登字第00008號
展開看全部
}