新建案/社區
區域找社區
地圖找社區
5年新社區
買屋
全部物件
新上架物件
新降價物件
土地
全部土地
新上架土地
新降價土地
租屋
區域找租
捷運找租
新上架租件
AI 查房價
實價登錄
全部實價
住宅實價
店面實價
土地實價
新聞
下載 APP
經紀人專區
刊登售屋
刊登租屋
開發物件
購買方案
首頁
買屋比價
桃園市
平鎮區
自由街
房價分析
分享
檢舉
地址
桃園市平鎮區自由街
地圖
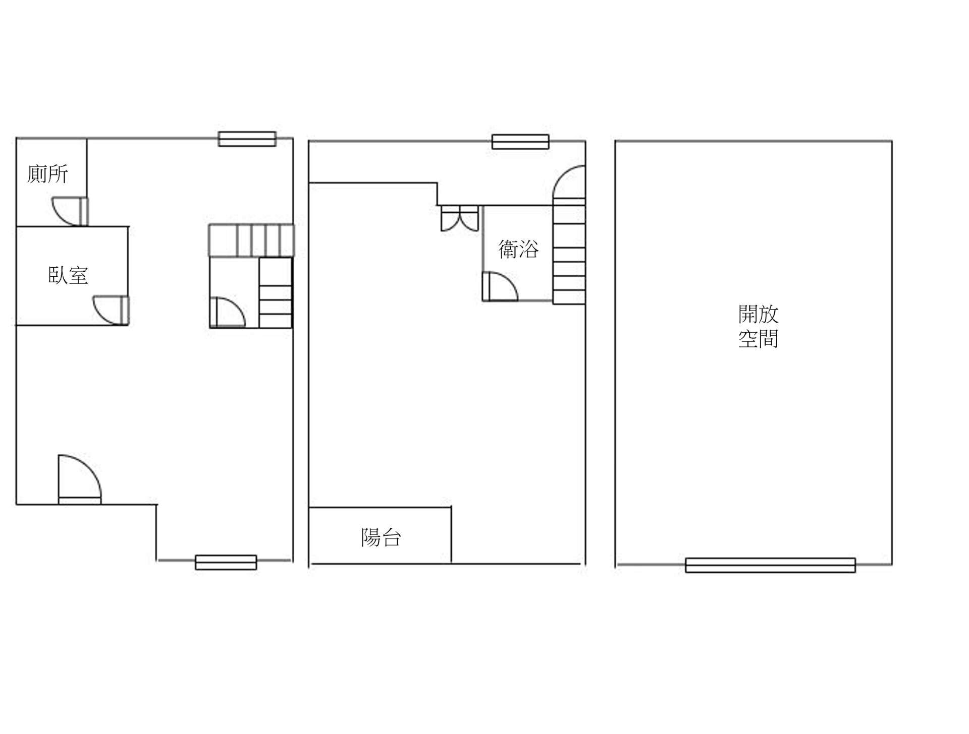
基本資料
型態
透天厝
屋齡
44年
管理方式
--
格局
2房1廳2衛
座向
坐北朝南
管理費
$-- / 月
樓層
1-2 / 2 樓
公設比
--
房貸參考
$24,133 /月
使用本息平均攤還法,利率1.935%,貸款成數7成,貸款期限30年,以上資料僅供參考,實際利率與貸款資料請洽各銀行。
社區
--
坪數說明
建物
25.33 坪
主建物
-- 坪
附屬建物
-- 坪
共同使用
-- 坪
其他
-- 坪
土地
17.6 坪
山子頂祥安國小透天
890
萬
>桃園市平鎮區自由街
--
型態
透天厝
格局
2房1廳2衛
建物
25.33 坪
單價
-- 萬
樓層
1-2 / 2 樓
屋齡
44 年
房屋照片
特色描寫
*、祥安國小 、平南國中 *、低總價透天 格局方正好規劃 *、3樓增建約12坪 *、巷口即有便利商店、公園、公車站牌、幼兒園、停車格等 機能便利 *、步行3-5分鐘有利來福超市與全聯 採買便利 *、距離祥安國小400公尺 接送孩童方便 *、近平鎮工業區 通勤沒問題 就業機會豐富 *、近66快速道路 南來北往快速串聯 預約專線:0932-505631~許小姐 住商房屋-中壢家樂福加盟店 菄錸不動產有限公司 不動產經紀人:林潔欣 (113)新北經字第004651號
展開看全部
}