分享
檢舉
地址
台中市東區建新街 地圖

基本資料

型態透天厝
屋齡2.2年
管理方式管理員
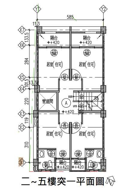
格局22房1廳22衛
座向坐西北朝東南
管理費$-- / 月
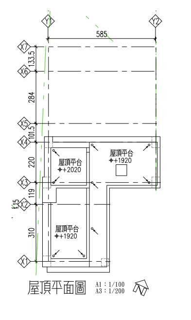
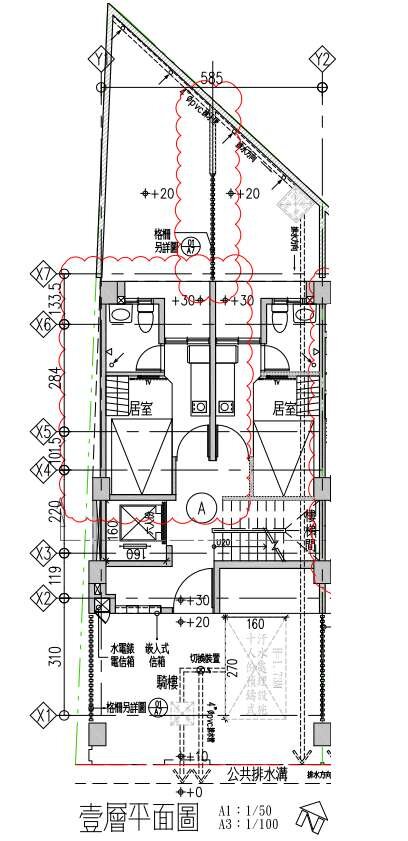
樓層1-5 / 6 樓
公設比--
房貸參考$135,036 /月
社區 --

坪數說明

建物 112.74 坪
主建物100.57 坪
附屬建物12.17 坪
共同使用-- 坪
其他 -- 坪
土地33.14 坪

東區三井lalaport 全新22套房電梯透天

4,980 萬 (含車位)
  • 型態
    透天厝
  • 格局
    22房1廳22衛
    • 建物
      112.74 坪
    • 單價
      37.9 萬
    • 樓層
      1-5 / 6 樓
    • 屋齡
      2.2 年
特色描寫
💰大智市場旁.三井lalaport騎車三分到 💰10米路.面寬6.2米.6樓層附電梯 💰住三土地興建.全新完工.全棟共計22套房 💰1樓騎樓停機車後面2間.2~6樓前2間後2間 💰間間獨洗獨曬.衛浴開窗.家具電齊全 💰建置雲端電力加值系統. 各房內用電顯示器 💰中興保全雲端監控防災防盜系統 💰滿租年收約264萬. 💖專線:0987-302757林鴻哲 💖LINE:sun1876333 「找我先加LINE回復比較快」 永義房屋福科安和店 鴻家房屋仲介有限公司 經紀人證號: 羅美蓮(111)中市經紀字第02056號 不動產經紀業員證: (114)登字第484443號
展開看全部
}