新建案/社區
區域找社區
地圖找社區
5年新社區
買屋
全部物件
新上架物件
新降價物件
土地
全部土地
新上架土地
新降價土地
租屋
區域找租
捷運找租
新上架租件
AI 查房價
實價登錄
全部實價
住宅實價
店面實價
土地實價
新聞
下載 APP
經紀人專區
刊登售屋
刊登租屋
開發物件
購買方案
首頁
買屋比價
台中市
西區
自治街
房價分析
分享
檢舉
地址
台中市西區自治街
地圖
基本資料
型態
其他
屋齡
2年
管理方式
--
格局
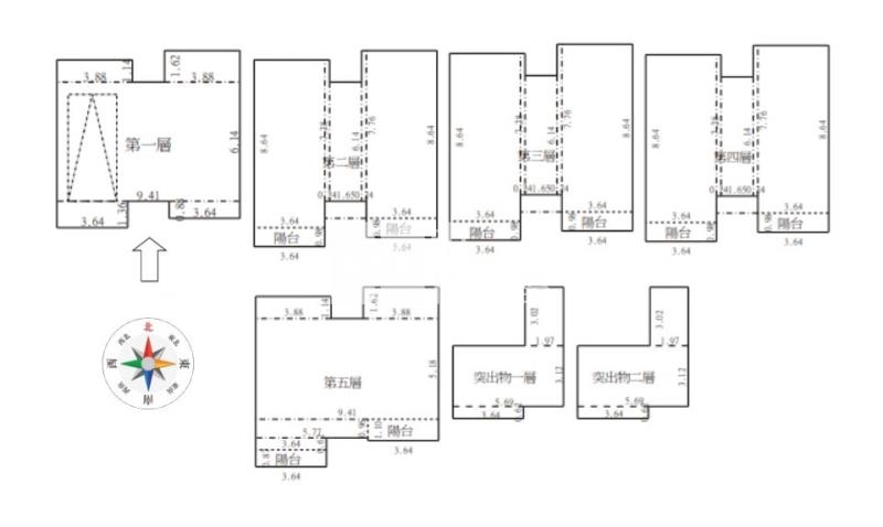
23房1廳24衛
座向
坐北朝南
管理費
$-- / 月
樓層
1-5 / 5 樓
公設比
--
房貸參考
$184,386 /月
使用本息平均攤還法,利率1.935%,貸款成數7成,貸款期限30年,以上資料僅供參考,實際利率與貸款資料請洽各銀行。
社區
--
坪數說明
建物
137.42 坪
主建物
128.78 坪
附屬建物
8.64 坪
共同使用
-- 坪
其他
-- 坪
土地
42.35 坪
🔥美術館全新整棟電梯23套🔥
6,800
萬
>台中市西區自治街
--
型態
其他
(有電梯)
格局
23房1廳24衛
建物
137.42 坪
單價
49.48 萬
樓層
1-5 / 5 樓
屋齡
2 年
房屋照片
特色描寫
👍西區美術館草悟道旁,地點絕佳 👍約10米大面寬,日式簡約風格外觀 👍全新完工,開放招租3天即滿租 👍感應扣磁卡進出安全有保障,間間陽台,獨洗獨曬 👍月收租金約25.5萬,年收租金約306萬,高投報金雞母 您好, 我是中信房屋台中科博館店-洪胤翔, 有任何需要歡迎來電詢問, 感謝您!! 家旺不動產經紀有限公司 吳柏翔(109)中市經紀字第01556號
展開看全部
}