首頁
買屋比價
宜蘭縣
三星鄉
萬富五路
白宮LOHAS
📣獨家專賣!三星萬富白宮大空間別墅
房價分析
分享
檢舉
地址
宜蘭縣三星鄉萬富五路
地圖
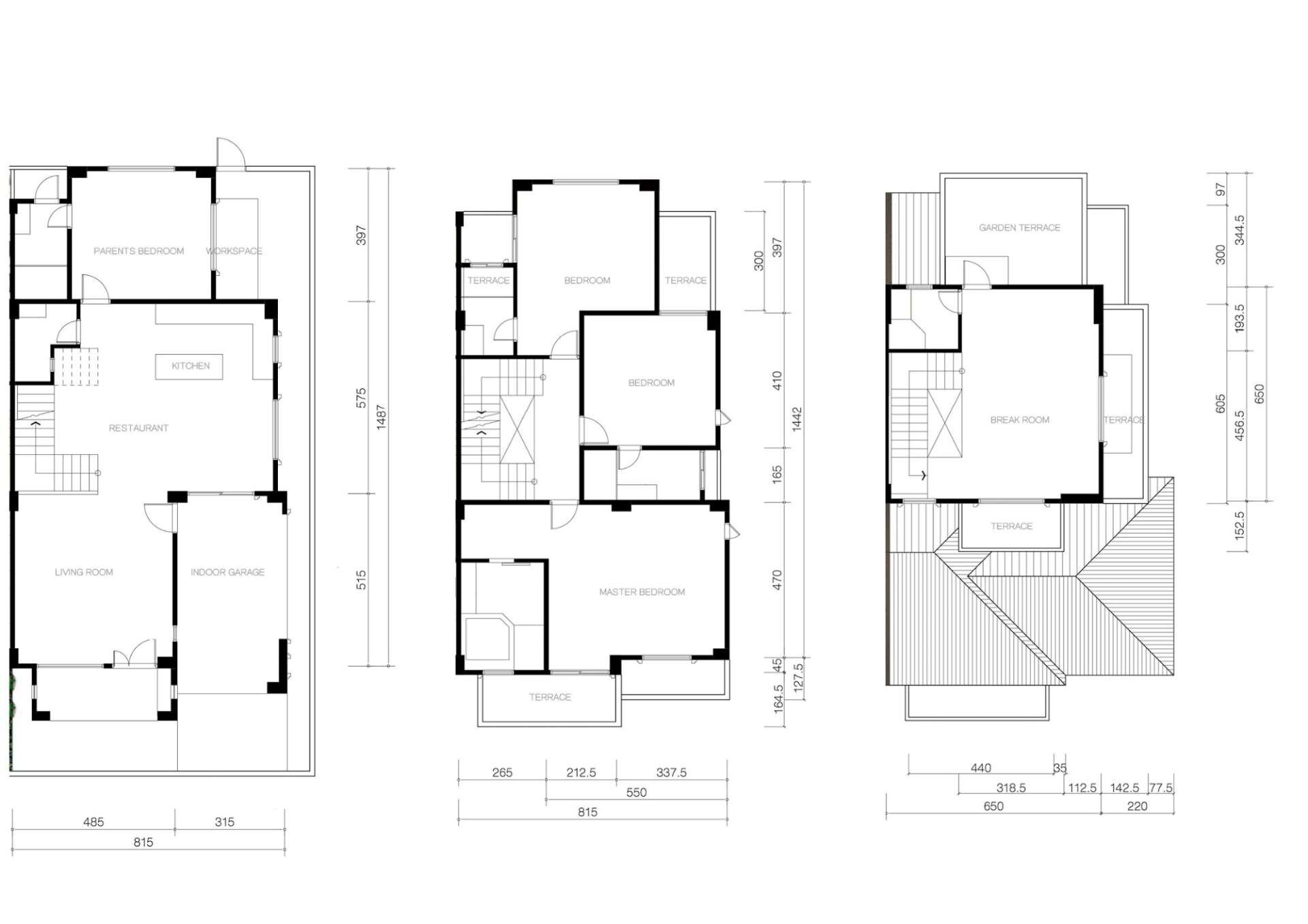
基本資料
型態
別墅
屋齡
9.4年
管理方式
--
格局
4房3廳6衛
座向
坐西北朝東南
管理費
$-- / 月
樓層
1-3 / 3 樓
公設比
--
房貸參考
$51,194 /月
使用本息平均攤還法,利率1.935%,貸款成數7成,貸款期限30年,以上資料僅供參考,實際利率與貸款資料請洽各銀行。
社區
白宮LOHAS
坪數說明
建物
87.1 坪
主建物
80.08 坪
附屬建物
7.02 坪
共同使用
-- 坪
其他
-- 坪
土地
49.53 坪
📣獨家專賣!三星萬富白宮大空間別墅
1,888
萬
>宜蘭縣三星鄉萬富五路
白宮LOHAS
型態
別墅
格局
4房3廳6衛
建物
87.1 坪
單價
-- 萬
樓層
1-3 / 3 樓
屋齡
9.4 年
房屋照片
特色描寫
獨家專賣!獨家專賣!獨家專賣! 三星萬富 白宮優質社區 56坪大地坪+87坪大空間 8米大面寬 舒適開闊 高級建材 進口磁磚 TOTO衛浴 實木廚具 屋況A++即可入住 開窗就是寧靜山林 回家就是度假心情 沉浸靜謐雅緻德生活場域 感受春風的輕拂 享受閑靜與悠然 締造一幅最美的情畫
展開看全部
}