首頁
買屋比價
台南市
安南區
城西街二段
楓華12期
台南產業園區旁四大套房可雙車別墅
房價分析
分享
檢舉
地址
台南市安南區城西街二段
地圖
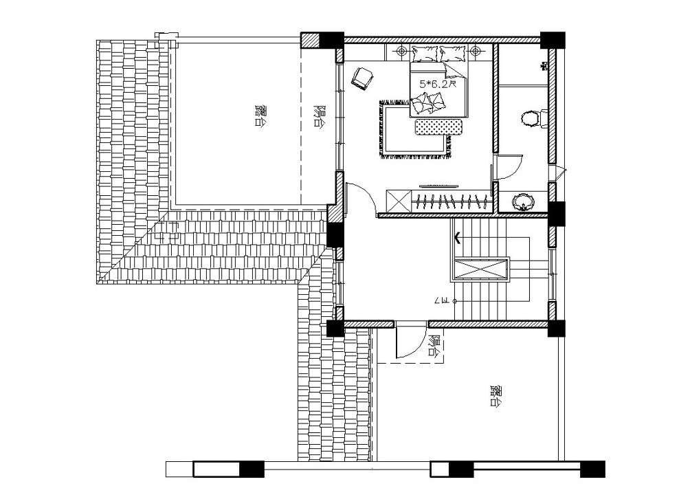
基本資料
型態
別墅
屋齡
3年
管理方式
--
格局
4房2廳5衛
座向
坐西朝東
管理費
$-- / 月
樓層
1-3 / 3 樓
公設比
--
房貸參考
$75,924 /月
使用本息平均攤還法,利率1.935%,貸款成數7成,貸款期限30年,以上資料僅供參考,實際利率與貸款資料請洽各銀行。
社區
楓華12期
坪數說明
建物
69.67 坪
主建物
-- 坪
附屬建物
-- 坪
共同使用
-- 坪
其他
-- 坪
土地
59.95 坪
台南產業園區旁四大套房可雙車別墅
2,800
萬
>台南市安南區城西街二段
楓華12期
型態
別墅
格局
4房2廳5衛
建物
69.67 坪
單價
-- 萬
樓層
1-3 / 3 樓
屋齡
3 年
房屋照片
特色描寫
👍四大套房,間間衛浴開窗 👍11米面寬,停雙車還可停機車 👍百萬裝潢,高檔建材 👍大地坪空間運用靈活 👍3分鐘到土城國小,5分鐘到台南產業園區 歡迎抽空感受室內空間及地點,看屋不用有壓力 歡迎來電詢問,預約看屋 台灣房屋崇德燊鴻特許加盟店 蔣俊彥(104)中市經紀字第01544號 😄0919-287062曹小姐 Line:0919287062
展開看全部
}