首頁
買屋比價
台北市
大安區
仁愛路三段
帝寶
景觀帝寶豪門大戶豪邸
房價分析
分享
檢舉
地址
台北市大安區仁愛路三段
地圖
基本資料
型態
大樓
屋齡
20.4年
管理方式
保全公司
格局
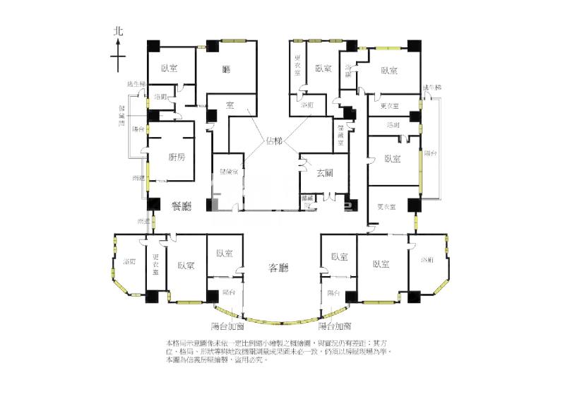
8房3廳6衛
座向
坐北朝南
管理費
$80,731 / 月
樓層
24 / 28 樓
公設比
32%
房貸參考
$2,102,005 /月
使用本息平均攤還法,利率1.935%,貸款成數7成,貸款期限30年,以上資料僅供參考,實際利率與貸款資料請洽各銀行。
社區
帝寶
坪數說明
建物
338.61 坪
主建物
163.47 坪
附屬建物
16.43 坪
共同使用
158.7 坪
其他
-- 坪
土地
50.34 坪
景觀帝寶豪門大戶豪邸
77,520
萬 (含車位)
>台北市大安區仁愛路三段
帝寶
型態
大樓
(有電梯)
格局
8房3廳6衛
建物
338.61 坪
單價
228.94 萬
樓層
24 / 28 樓
屋齡
20.4 年
房屋照片
特色描寫
1.面仁愛路樹海林蔭景觀,近大安森林公園,景觀優美,視野遼闊。 2.百米仁愛林蔭大道,遼闊樹海,基地四周有圍牆與長約500公尺護城河環繞。 3.中庭噴泉,中西式庭園造景,600坪飯店級圓頂造型獨棟豪華俱樂部會館。 4.戶戶制震,1196根制震器,公設完善,社區花園俱樂部全天物業管理。 5.高級典雅精緻豪邸,高樓美景盡在眼底,遠眺山嵐,驚世稀有珍品典藏。
展開看全部
}